Diese ansprechende und sehr großzügige 2,5-Zimmer-Wohnung bietet Ihnen eine durchdachte Aufteilung. Die hellen und lichtdurchfluteten Räume laden zum Verweilen ein. Ausgestattet ist die Wohnung mit einer Einbauküche inklusive Elektrogroßgeräten - diese offene Küche grenzt an den Wohn- und Essbereich, der durch seinen großzügigen Schnitt viel Raum zum Gestalten zulässt. Als Nebenräume stehen Ihnen ein eigener Kellerraum, ein gemeinschaftlicher Trockenraum sowie ein Fahrradraum zur Verfügung und ein Stellplatz in der Tiefgarage inklusive! Energieausweis: Verbrauchsausweis, 111 kWh/(m²*a), Gas, Baujahr 1992, Energieeffizienzklasse D Als Besonderheit steht der Wohnung ein großer Bühnenraum, direkt über die Wohnung begehbar, zur Verfügung. Haben wir Ihr Interesse geweckt? Dann freuen wir uns über Ihre schriftliche Kontaktaufnahme! Kompetenz und Leidenschaft. Die Wohnung befindet sich im beliebten Wohngebiet "Fünf Linden" in Biberach. Das Wohngebiet besticht durch seine großzügigen Grünflächen und die liebevoll gestaltete Parklandschaft, die zu Spaziergängen im Freien einlädt. Das Wohngebiet ist hervorragend an das Verkehrsnetz angebunden. Die Innenstadt von Biberach ist nur wenige Minuten entfernt und bequem mit dem Auto, dem Fahrrad oder den öffentlichen Verkehrsmitteln erreichbar. Die Bushaltestelle hierzu befindet sich in unmittelbarer Nähe.
Die dargestellte Position der Immobilie ist nur eine ungefähre Angabe. Ansprechende und helle 2 1/2 Zimmer-Wohnung mit herrlichem Sonnenbalkon!
88400 Biberach an der Riß, Wohnung zur Miete
Kontaktdaten
73734 EsslingenObjektdaten
Ausstattung / Merkmale
Energieausweis
Objektbeschreibung
Beschreibung
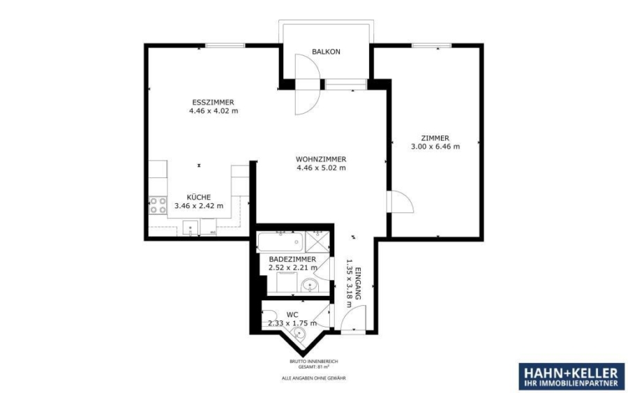
Zwischen Wohn- und Essbereich befindet sich der Zugang zum Sonnenbalkon.
Das Badezimmer ist mit einer Badewanne und einer Dusche ausgestattet, das WC ist separat. Das seitlich gelegene Schlafzimmer ist ca. 20m² groß und rundet die ansprechende Aufteilung der Wohnung ab.Sonstiges
Die Hahn+Keller Unternehmensgruppe wurde 1975 in Esslingen gegründet und hat sich zu einem führenden Unternehmen im Immobilienbereich entwickelt. Mit der Zentrale in Esslingen und Filialen im Remstal, Filstal, Stuttgart und Biberach sind wir der kompetente Partner in Ihrer Nähe. Wir bieten Ihnen unsere Mithilfe bei Verkauf, Kauf, Vermietung, Neubau oder der Verwaltung von Immobilien an.
Trotz sorgfältiger Prüfung der im Exposé gemachten Angaben, können wir für die Richtigkeit und Vollständigkeit der Angaben keine Haftung übernehmen.
Mehr als 200 aktuelle Angebote finden Sie unter www.hahn-keller.com.
Sollten wir aktuell keine passende Immobilie für Sie haben, so können wir Ihre Suchkriterien aufnehmen, um Sie bei Ihrer Suche zu unterstützen.
Während Ihrer Immobiliensuche können Sie auch ganz einfach für uns tätig werden. Bei Ihrer Immobiliensuche haben Sie auch mit privaten Verkäufern Kontakt. Leiten Sie diesen Kontakt (Name, Telefonnummer, Adresse der Immobilie) einfach an uns weiter. Sobald sich aus Ihrer Weiterleitung ein erfolgreiches Geschäft ergibt, erhalten Sie 250 EUR als Tipp-Provision.
Gerne verkaufen, vermieten oder verwalten wir auch Ihre Immobilie.
Achten Sie auf die Makler-Zugehörigkeit zum Immobilienverband Deutschland "IVD". Die Verbandsmitgliedschaft steht für Qualität und Seriosität.Lage
Unternehmen
© Hahn+Keller Unternehmensgruppe
Ihr Immobilienpartner











